试用&购买
|
快捷登录
九维iTV云登录
iRouter云登录
客控管理云登录
洗衣机对接登录
代理商登录
首页
产品
互动电视
路由及网络管理
无线WiFi
网络电话
光纤组网
客控系统
互动电视服务器系列
本地部署
高清编码器系列
机顶盒系列
光猫融合终端系列
无线路由融合终端系列
iTV网关系列
配合iTV云使用
私密投屏网关系列
配合iTV云使用
AI语音遥控器
路由器系列
融合业务服务器系列
酒店多业务服务器
无线AP系列
路由系统中SIP服务
FXO语音网关系列
GPON OLT系列
无线光猫系列
光猫助手
智能客控模组
智能开关面板系列
智能窗帘电机
单路智能控制器
智能插座
方案
IPTV解决方案
IPTV运营商解决方案
星级酒店互动电视解决方案
连锁酒店互动电视解决方案
民宿互动电视解决方案
医院互动电视解决方案
远程视频教学解决方案
校园IPTV解决方案
三网融合解决方案
基于PON网络的酒店三网融合解决方案
光猫集中管理解决方案
电视电话融合解决方案
基于网线组网的酒店三网融合解决方案
酒店小全光方案
客控系统解决方案
秒开智能客控方案
|- 离线音控酒店智能客控解决方案
|- 在线音控的酒店智能客控解决方案
|- 无零线改造为智能客控方案
秒开智能客控商务合作方案
商务
下载
帮助
技术支持
秒开IPTV手册
秒开iRouter路由手册
秒开智能客控系统手册
试用&购买
九维iTV云登录
iRouter云登录
客控管理云登录
洗衣机对接登录
代理商登录
秒开客控-样间征集
填写申请
联系我们
部署环境
零火线布到开关
核心优势
首创无网关,支持远程配网
无对线要求,和普通开关一样安装
支持服务端私有化部署
技术服务
自助配网教程
远程客服配网
预约技术培训
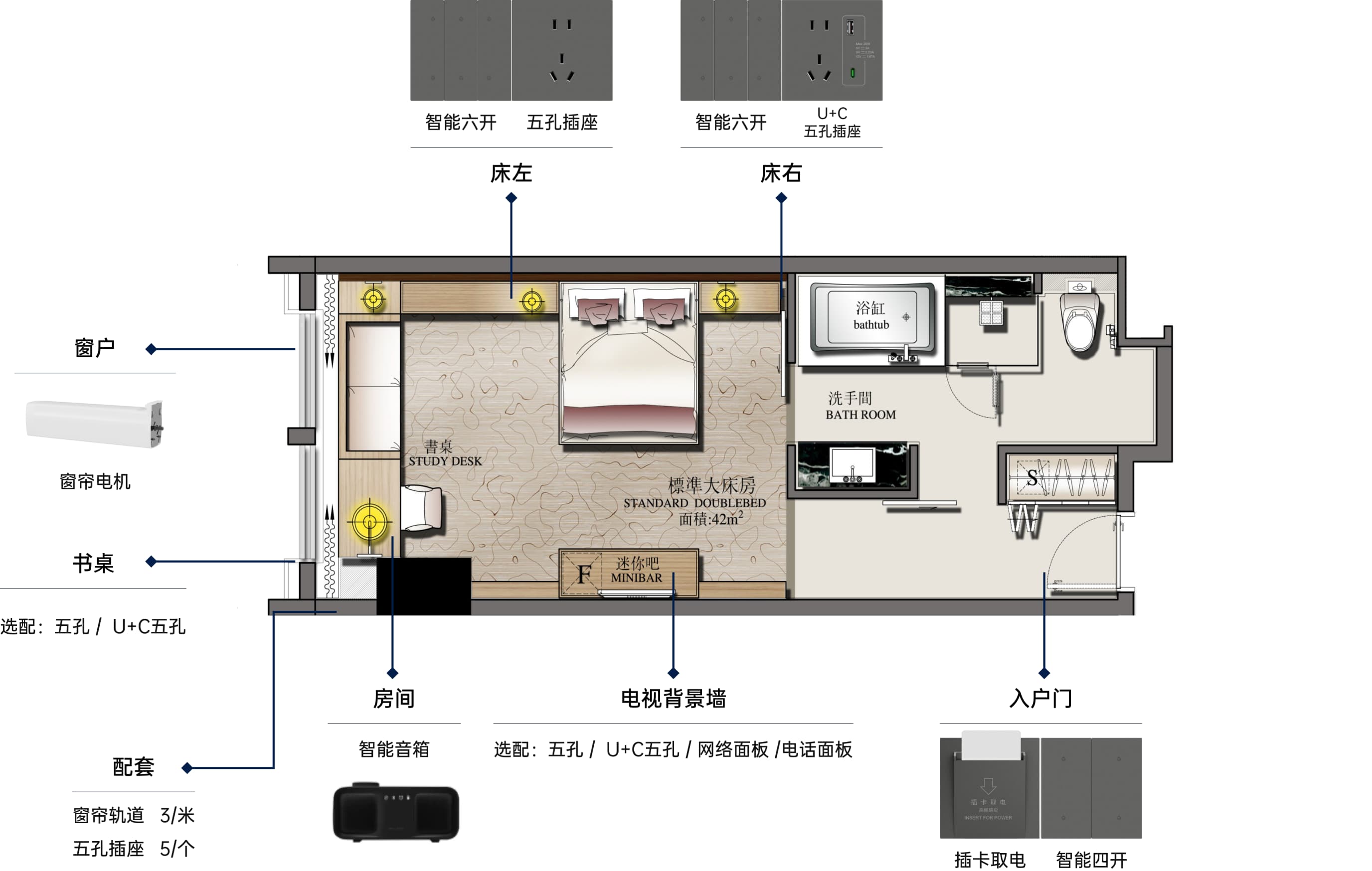
大床房
双床标间
1、单间房预估费用
1299
起
2、本报价含远程配网调试,不含安装和现场调试费
3、上述报价30日内有效
4、下载无线智能客控(样间)
产品清单
贴心服务
个性化选择!
满足您的需求是我们存在意义,让您满意就是我们努力目标,您有任何需求,请拨打热线电话,咨询工程师即刻为您解答
*
您的称呼
*
联系电话
提交